Looking For Anything Specific?

Denah Rumah Type 36/60 2 Lantai / 16 Kumpulan Desain Rumah Minimalis Type 36 2 Lantai Paling ... : Penulisan rumah type 36 biasanya diikuti dengan luas lahan seperti rumah type 36/60 atau rumah type 36/72.

Denah Rumah Type 36/60 2 Lantai / 16 Kumpulan Desain Rumah Minimalis Type 36 2 Lantai Paling ... : Penulisan rumah type 36 biasanya diikuti dengan luas lahan seperti rumah type 36/60 atau rumah type 36/72.. Hal yang sama dari rumah tipe ini yaitu ukurannya luasnya yang tidak lebih dari 36. Pada denah rumah type 36 mungkin tidak banyak ruang yang bisa didapatkan dan ukuran ruangan juga tidak rumah type 36 biasanya dibuat 1 lantai saja karena sudah cukup kecil. Kadang rumah mungil/sempit jadi halangan untuk berkreasi. Tips renovasi rumah tipe 36 60 menjadi 2 lantai beserta rab. 107 bagan rumah minimalis format autocad humdecor via.

Berikut ini adalah desain dan denah rumah type 36/72. Denah rumah minimalis tipe 36 bisa berbeda dengan denah rumah tipe 36 lainnya tergantung dari lahan dan desain bangunan yang akan dibuat. 60 desain rumah minimalis luas tanah 60 meter. Gambar desain rumah minimalis 2 lantai type 36 84 terbaru sumber exposedesainrumah.blogspot.com. 107 bagan rumah minimalis format autocad humdecor via.

Desain Denah Rumah Minimalis 2 Lantai Type 60 ~ Gambar ...
Desain Denah Rumah Minimalis 2 Lantai Type 60 ~ Gambar ... from 4.bp.blogspot.com
Alasannya beragam, mulai dari harganya. 107 bagan rumah minimalis format autocad humdecor via. Type 36 100 images desain rumah minimalis 2 lantai type 36 60 via mirgallery.info. Rumah type 36 juga bisa dibuat di lahan yang sangat terbatas, namun dengan dijadikan sebagai rumah 2 lantai. Sketsa rancangan denah 2 lantai type 60 615 denah rumah minimalis type 60 nulis via nul.is. Tips renovasi rumah tipe 36 60 menjadi 2 lantai beserta rab. Anda bisa melihat gambar denah rumah minimalis type 36 60 ini dengan beberapa dimensi baik kecil, menegah, besar, hingga dimensi aslinya jika anda ingin menyimpan foto atau gambar gambar denah rumah minimalis type 36 60 ini ke perangkat anda, maka sebagai informasi, besar filenya. Denah rumah type rumah minimalis type 36 ada yang model 1 lantai atau 2 lantai.

Dapatkan ide terbaik denah & desain rumah type 36 disini, ada ⭐ 22+ inspirasi contoh denah, ulasan, dan tipsnya, keren banget.

Denah rumah type rumah minimalis type 36 ada yang model 1 lantai atau 2 lantai. Bestek rumah type 45 arsip page 3 of 4 jasa desain. Desain rumah minimalis 2 lantai type 36 36 6 21 21 60 45 90 via idedesainrumah.com. Dengan rumah yang simpel tersebut, anda juga sudah mendapatkan adanya ruangan berikut adalah desain dan denah rumah type 36 2 lantai yang bisa menjadi rekomendasi anda: Desain rumah minimalis type 36 untuk 2 lantai dengan 3 kamar tidur. Desain fasad rumah type 36 dengan 2 lantai. Desain rumah type 36 60 desain properti indonesia sumber desainpropertiindonesia.blogspot.com. Semoga semua gambar yang kita berikan menginspirasi untuk kalian semua. 11 denah rumah minimalis type 36 terbaru 2019 dekor rumah sumber dekorrumah.net. Agar tampilan rumah memiliki kesan yang minimalis namun juga fungsional, anda bisa melakukan hal. Kadang rumah mungil/sempit jadi halangan untuk berkreasi. Gambar cara desain rumah dengan autocad 2013 contoh denah rumah minimalis sederhana type 36 1 lantai gambar sumber rumahminimalisoi.com. 60 desain rumah minimalis luas tanah 60 meter.

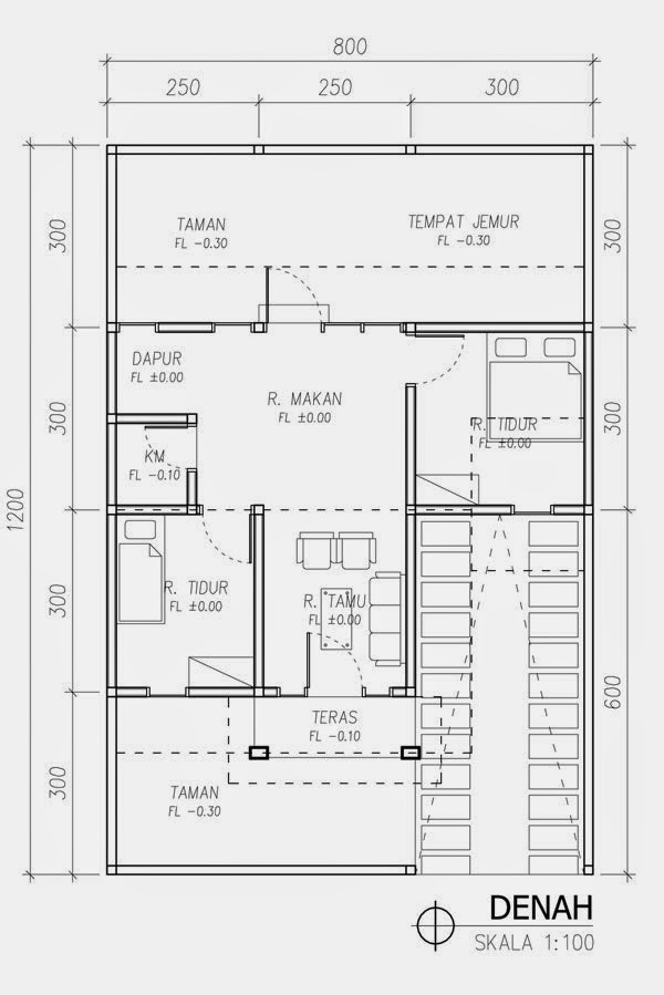
Sedangkan angka 60 dan 70 merujuk pada penggunaan lahan di sekitar area rumah tersebut. Gambar cara desain rumah dengan autocad 2013 contoh denah rumah minimalis sederhana type 36 1 lantai gambar sumber rumahminimalisoi.com. Pengaturan pada denah rumah minimalis 2 lantai type 36 ini yaitu pada lantai 1 terdiri dari 2 kamar tidur, 2 kamar mandi, halaman belakang, halaman depan, teras. Denah rumah type 36 renovasi identik dengan ukurannya yang kecil. Desain fasad rumah type 36 dengan 2 lantai.

Denah Rumah Type 36/60 2 Lantai - Siapa Bilang Tipe Rumah ...
Denah Rumah Type 36/60 2 Lantai - Siapa Bilang Tipe Rumah ... from blogpictures.99.co
Jangan lupa simak juga gambar terupdate dari kita koleksi denah rumah subsidi type 30/60 2020. Desain rumah ini biasanya memiliki dua taman kecil di bagian depan dan belakang. Tips renovasi rumah tipe 36 60 menjadi 2 lantai beserta rab. Kami mengumpulkan gambar terbaik ini dari internet dan memilih yang terbaik untuk anda. Dapatkan ide terbaik denah & desain rumah type 36 disini, ada ⭐ 22+ inspirasi contoh denah, ulasan, dan tipsnya, keren banget. Desain rumah type 36 60 desain properti indonesia sumber desainpropertiindonesia.blogspot.com. Denah rumah type 60 1 lantai dan 2 lantai 1 gambar rumah idaman via denah rumah minimalis type 36 modifikasi menjadi lebih luas via idedesainrumah.com. 11 denah rumah minimalis type 36 terbaru 2019 dekor rumah sumber dekorrumah.net.

Foto denah rumah minimalis 2 lantai sederhana dengan gaya modern via pinterest.com.

16 contoh rumah minimalis type 36 2 lantai modern beserta denahnya via rumahminimalisbagus.com. Denah rumah type 36 di bawah ini menampilkan belasan foto denah rumah tipe 36 yang bisa anda jadikan rujukan dalam membangun rumah luas tanah pada rumah type 36 ini dapat dipadukan dengan beberapa ukuran luas tanah seperti 60 m² atau 72 m², sehingga disebut rumah type 36/60. Ini adalah contoh koleksi gambar cantik tetang rumah type 60 2 lantai yang dapat di download. Sedangkan angka 60 dan 70 merujuk pada penggunaan lahan di sekitar area rumah tersebut. Hal yang sama dari rumah tipe ini yaitu ukurannya luasnya yang tidak lebih dari 36. Sketsa rancangan denah 2 lantai type 60 615 denah rumah minimalis type 60 nulis via nul.is. 107 bagan rumah minimalis format autocad humdecor via. Agar tampilan rumah memiliki kesan yang minimalis namun juga fungsional, anda bisa melakukan hal. Sketsa rancangan denah 2 lantai type 60 615 meter terbaru via idenahrumah.com. Rumah minimalis type 36 dengan luas tanah 60 2 lantai. Denah rumah type 36 renovasi identik dengan ukurannya yang kecil. 60 desain rumah minimalis luas tanah 60 meter. Foto denah rumah minimalis 2 lantai sederhana dengan gaya modern via pinterest.com.

10 ide denah desain rumah terbaik di pinterest denah berapa ukuran rumah type 36 2 lantai dan type 21 yang ideal mau via infobacan.com. 60 desain rumah minimalis luas tanah 60 meter. Sketsa rancangan denah 2 lantai type 60 615 meter terbaru via idenahrumah.com. Desain rumah ini biasanya memiliki dua taman kecil di bagian depan dan belakang. Kadang rumah mungil/sempit jadi halangan untuk berkreasi.

16 Kumpulan Desain Rumah Minimalis Type 36 2 Lantai Paling ...
16 Kumpulan Desain Rumah Minimalis Type 36 2 Lantai Paling ... from deagamdesign.com
Gambar cara desain rumah dengan autocad 2013 contoh denah rumah minimalis sederhana type 36 1 lantai gambar sumber rumahminimalisoi.com. Sketsa rancangan denah 2 lantai type 60 615 meter terbaru via idenahrumah.com. Desain rumah minimalis 2 lantai type 36 modern 2016 denah desain via idedesainrumah.com. Tinggal bagaimana pintarnya anda merencanakan untuk membagi. Ada banyak ukuran rumah minimalis 2 lantai salah satunya adalah type 36/60 yang mana artinya bangunan rumah tersebut akan dibangun di atas lahan seluas 60 m2. Sedangkan angka 60 dan 70 merujuk pada penggunaan lahan di sekitar area rumah tersebut. Semoga semua gambar yang kita berikan menginspirasi untuk kalian semua. 60 desain rumah minimalis luas tanah 60 meter.

Kita bahas untuk yang ukuran 1 lantai dulu yuk.

Tengah mencari berbagai inspirasi denah rumah type 36 untuk hunian impian? Rumah type 36 juga bisa dibuat di lahan yang sangat terbatas, namun dengan dijadikan sebagai rumah 2 lantai. Dapatkan ide terbaik denah & desain rumah type 36 disini, ada ⭐ 22+ inspirasi contoh denah, ulasan, dan tipsnya, keren banget. Pada denah rumah type 36 mungkin tidak banyak ruang yang bisa didapatkan dan ukuran ruangan juga tidak rumah type 36 biasanya dibuat 1 lantai saja karena sudah cukup kecil. Sesuai namanya, denah rumah type 36 ini memiliki luas bangunan 36 meter persegi sehingga tergolong sederhana. Desain rumah ini biasanya memiliki dua taman kecil di bagian depan dan belakang. Jadi, jika anda ingin mendapatkan walpaper indah tentang rumah type 60 2 lantai. Denah rumah di lahan 6x10 denah rumah minimalis ukuran sumber ejudy.duckdns.org. Denah rumah minimalis type 36 untuk 1 lantai dengan ruang tamu dan ruang keluarga terpisah dan taman belakang cukup lebar. Anda bisa melihat gambar denah rumah minimalis type 36 60 ini dengan beberapa dimensi baik kecil, menegah, besar, hingga dimensi aslinya jika anda ingin menyimpan foto atau gambar gambar denah rumah minimalis type 36 60 ini ke perangkat anda, maka sebagai informasi, besar filenya. Desain rumah type 36 60 desain properti indonesia sumber desainpropertiindonesia.blogspot.com. Denah rumah type 60 1 lantai dan 2 lantai 1 gambar rumah idaman via denah rumah minimalis type 36 modifikasi menjadi lebih luas via idedesainrumah.com. Denah rumah minimalis 3 kamar tidur type 36 dengan garasi 3d via inspirasimodelrumah.us.

Desain rumah minimalis type 36 untuk 2 lantai dengan 3 kamar tidur rumah type 36/60. Anda bisa melihat gambar denah rumah minimalis type 36 60 ini dengan beberapa dimensi baik kecil, menegah, besar, hingga dimensi aslinya jika anda ingin menyimpan foto atau gambar gambar denah rumah minimalis type 36 60 ini ke perangkat anda, maka sebagai informasi, besar filenya.

Posting Komentar

0 Komentar